Referenzen
Zufriedene Kundinnen und Kunden sprechen am Ende für den Erfolg unserer Arbeit
Pläne sind nur so gut wie Ihre Umsetzung, daher stehen wir mit unseren Kundinnen und Kunden von Beginn an im Dialog
Das ist unser Anspruch an jedes Projekt
Wir freuen uns, wenn unsere Kundinnen und Kunden am Projektende sagen:
- Wir hatten immer eine offene und faire Kommunikation
- Zuverlässigkeit war in jeder Projektphase selbstverständlich
- Die Kosten wurden eingehalten
- Es wurde immer nachhaltig und verantwortungsvoll mit den anvertrauten Ressourcen und Budgetmitteln umgegangen
Gastronomie - Kongresshalle Böblingen (Hallenbetrieb und Restaurant) – Sanierung der Bestandsküche / Restaurant
Einrichtungsplan
Gastronomie - Stadthalle Wernau (Hallenbetrieb und Restaurant) - Sanierung der Bestandsküche / Restaurant über 3 Etagen
Einrichtungsplan
Einrichtungsplan
Einrichtungsplan
Betriebsgastronomie - Eaton Electric GmbH Ebersbach - Bestandsumnutzung Casino / Personalrestaurant
Grundriss
Projektdaten
Eaton Electric GmbH
Neuer Weg Nord 49
D-69412 Ebersbach
Plätze: 120
Anzahl VE / Tag: ca. 400
Kochsystematik: Mischküche
Betrieb über externen Caterer
Leistungen Ingenieurbüro Beck
- Erstellung Verpflegungskonzept und Umsetzung
- Modernisierung und Umbau des
Verpflegungsbereiches (HOAI LPH 1-8)
Investitionskosten KG 471: ca. 200.000 EUR
Betriebsgastronomie - Neubau Haus der Begegnung Schönbrunn - Küchentechnik
Grundriss
Projektdaten
Viktoria-von-Butler-Stiftung
Raphaelweg 10
85244 Schönbrunn
Plätze: 120
Anzahl VE / Tag: ca. 400
Kochsystematik: Mischküche
Betrieb Eigenregie
Leistungen Ingenieurbüro Beck
- Erstellung Verpflegungskonzept und Umsetzung
- Neubau des Verpflegungsbereiches (HOAI LPH 1-6)
Investitionskosten KG 471: ca. 170.000 EUR
Krankenhausgastronomie - Kliniken Ludwigsburg-Bietigheim gGmbH Ludwigsburg - Sanierung der Cafeteria
Grundriss
Projektdaten
Kliniken Ludwigsburg-Bietigheim gGmbH
Posilipostraße 4
71640 Ludwigsburg
Plätze: ca. 40
Anzahl VE / Tag: ca. 80
Kochsystematik: Mischküche mit Zulieferung aus Hauptküche
Betrieb Eigenregie
Leistungen Ingenieurbüro Beck
- Erstellung Verpflegungskonzept und Umsetzung
- Neubau des Verpflegungsbereiches (HOAI LPH 1-6)
Investitionskosten KG 471: ca. 180.000 EUR
Schulgastronomie - Schulverpflegung für die Schüler der FKS Ehningen – Neubau in Stahlbetonbauweise
Grundriss
Projektdaten
Friedrich Kammerer Schule Ehningen
Schlossstraße 35
71139 Ehningen
Plätze: 200
Anzahl VE / Tag: max. ca. 400
Kochsystematik: Cook&Chill
Belieferung der C&C-Waren über externen Caterer, Zubereitung über Personal der Gemeinde
Leistungen Ingenieurbüro Beck
- Erstellung Verpflegungskonzept
- Einrichtung einer Interimslösung
- Neubau des Verpflegungsbereiches (HOAI LPH 1-8)
Investitionskosten KG 471: ca. 270.000 EUR
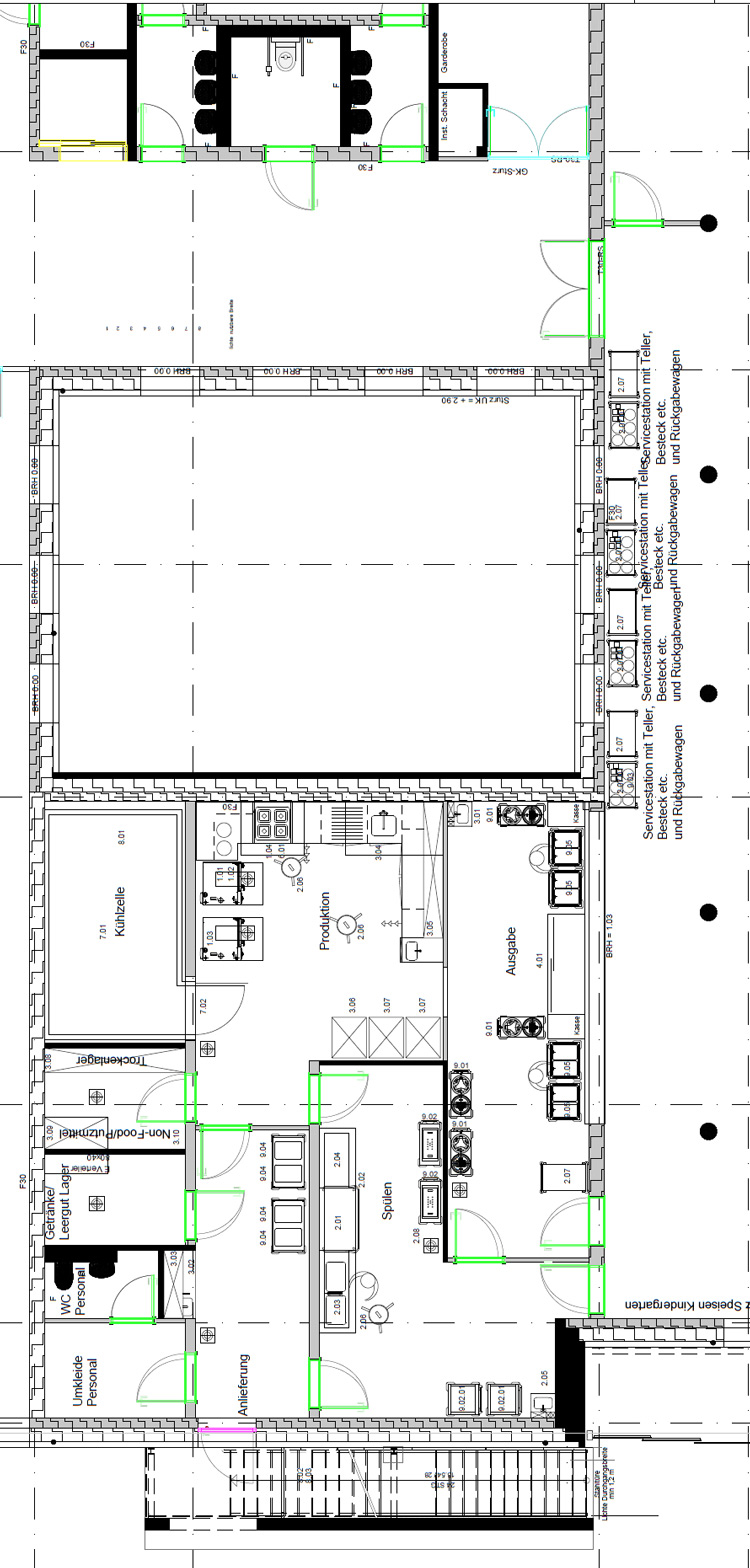
Schulgastronomie - Schulverpflegung für die Schüler der GMS Deizisau – Neubau in Stahlbetonbauweise
Grundriss
Projektdaten
Gemeinschaftsschule Deizisau
Bismarckstr.15
73799 Deizisau
Plätze: 190
Anzahl VE / Tag: max. ca. 380
Kochsystematik: Cook&Chill
Belieferung der C&C-Waren über externen Caterer, Zubereitung über Personal der Gemeinde
Leistungen Ingenieurbüro Beck
- Erstellung Verpflegungskonzept
- Neuplanung des Verpflegungsbereiches (HOAI LPH 1-8)
Investitionskosten KG 471: ca. 124.000 EUR
Schulgastronomie - Schulverpflegung für die Schüler der ARS Freiburg – Neubau in Holzbauweise (Passivhaus-Standard)
Grundriss
Projektdaten
Adolf Reichwein Schule
Bugginger Straße 83
79114 Freiburg im Breisgau
Plätze: 160
Anzahl VE / Tag: max. ca. 500 (2,5 x 160 Inhaus und 100 Außerhaus)
Kochsystematik: Cook&Chill
Belieferung der C&C-Waren über externen Caterer, Zubereitung über Personal der Gemeinde
Leistungen Ingenieurbüro Beck
- Erstellung Verpflegungskonzept
- Neuplanung des Verpflegungsbereiches (HOAI LPH 1-8)
Investitionskosten KG 471: ca. 180.000 EUR
